DTP16.600 S-221014 verzameling gevels (872x1310)

De Tuinen van Puurs

Inrichtingsplan Puurs 
100 woningen en commerciële ruimtes
Besloten Wedstrijd
Puurs
2018-

Opdrachtgever: Van Roey Vastgoed
Stedenbouw:Blauwdruk
Landschap:Land landschapsarchitecten

DTP16.600 S-221107 renderbeeld masterplan (872x1310)
DTP16.600 S-221014 opgewerkte foto maquette (872x1310)
DTP16.600 S-221014 maquette foto zwart wit 2  (394x591)
DTP16.600 S-221014 maquette foto zwart wit  (394x591)
DTP16.600 S-221014 maquette foto zwart wit 3  (394x591)

Samen-milieus

Echte verschillen in gebouwen ontstaan vanuit de variaties in typologie en adres.
Ze bepalen de verhouding van mensen tot hun gebouwde omgeving, tot het idee van gemeenschap en van thuis.
Ze dragen hopelijk bij tot een rijk en gevarieerd woonmilieu en tot een verankering in de context.
Gebouwen bepalen samen de sfeer van een plein, de straat, het dorpsbeeld en het binnengebied.
Ze zijn het behangpapier van de publieke of collectieve ruimte. De inherente bouwlogica, bouwonderdelen en detaillering zorgen
voor een verschil in de samenhang, dat niet gezocht of cosmetisch is, maar eerlijk.
Een diplomatisch en genuanceerd kleurenpallet zorgt voor een rustige filter.

DTP16.600 S-230117-A1-Master +0

Binnengebied

Het binnengebied blijft geen dode letter. Alle woningen krijgen een rechtstreekse of onrechtstreekse toegang tot de collectieve tuin, op zoveel mogelijk verschillende manieren. Terrassen, tuinen en loggia's engageren zich naar het hof. Het collectieve is een aanvulling op
het private, geen geforceerde naïviteit.
Tot op de tweede verdieping houdt deze connectie steek en wordt het klimaat van het binnengebied verrijkt door 'porches'
of loggias.

DTP16.500 S-230825-renderbeeld binnengebied sneeuw (lichter)

Schaal-verzoening

Wat is het verschil tussen maat en schaal?
Bestaat er iets als landelijk of dorpse dichtheid, zoals ook de Vlaams Bouwmeester het promoot? 
Kunnen we door lucht in het volume, de impact van hoogteaccenten rijmen met de schaal van het bouwblok?
Een duidelijke geleding van de twee torentjes zorgt voor een verschaling van de gebouwen, 
op basis van logische verschillen. Een plint als verlengde van de straat. Een generiek lichaam. Loggia’s boven de daken. Een stiekeme kroon.

DTP16.600 S-230117 maquette zwart wit 3 gebouwen
DTP16.600 S-221017 maquette foto A2 zwart wit  (872x1310)

Huiselijkheid

Mensen wonen in een straat , op een plein, hoewel ze er –als we heel precies zijn – eigenlijk naast of langs wonen. Bij een nieuwe ontwikkeling
op schaal van een heel bouwblok is het adres een belangrijke thema. Grote woongebouwen hebben het detail en de materialiteit van het geheel wordt het generieke terug huiselijk, tactiel en zintuiglijk.

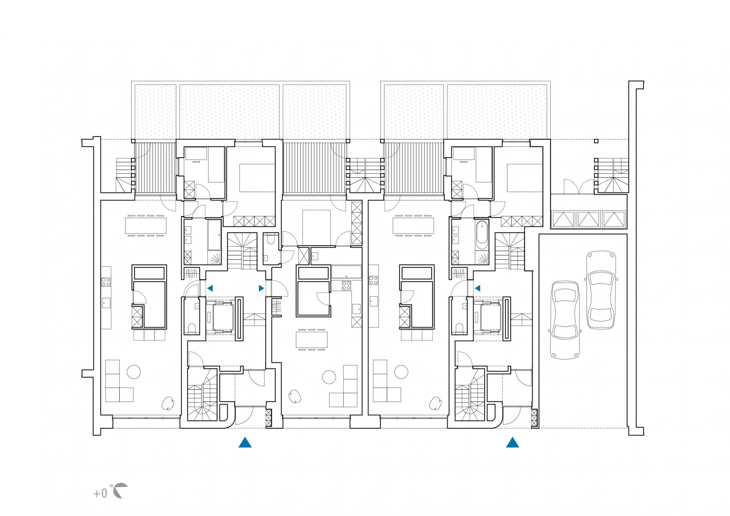
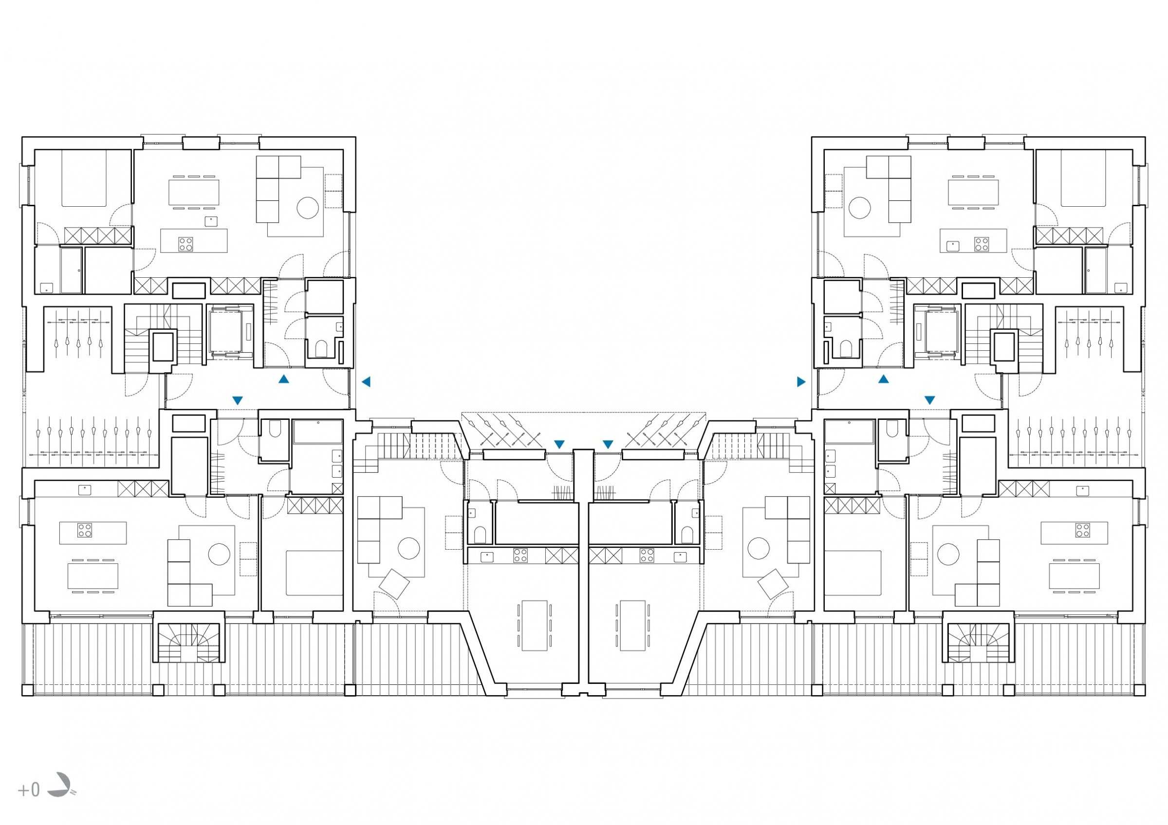
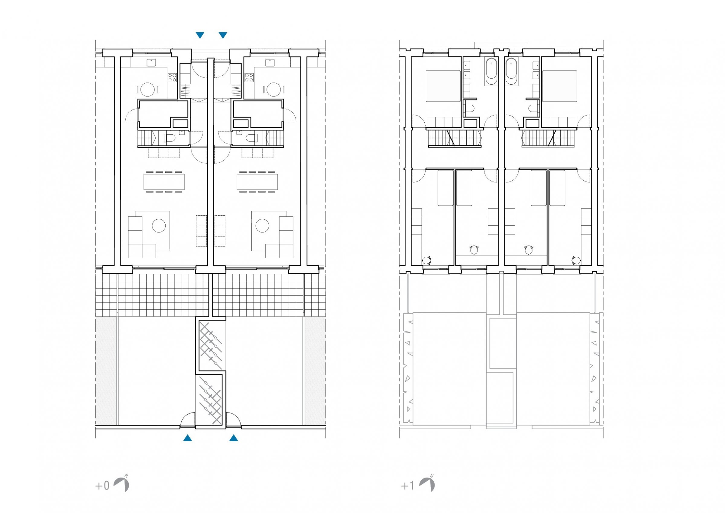
A1- rijwoningen begijnhofstraat

DTP16.600 S-230821 A1
DTP16.500 M-181112-A1 materialen (versie 3)
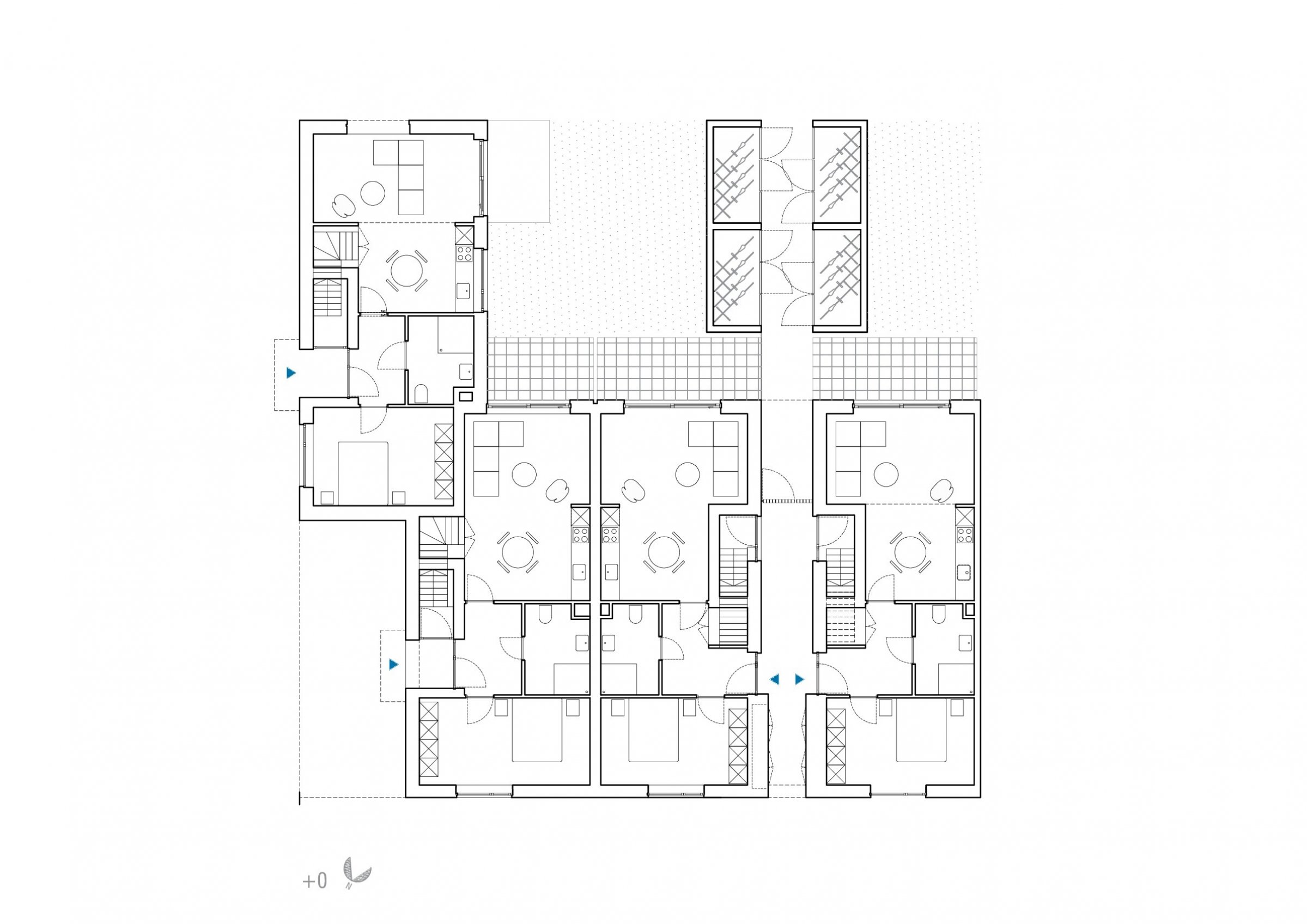
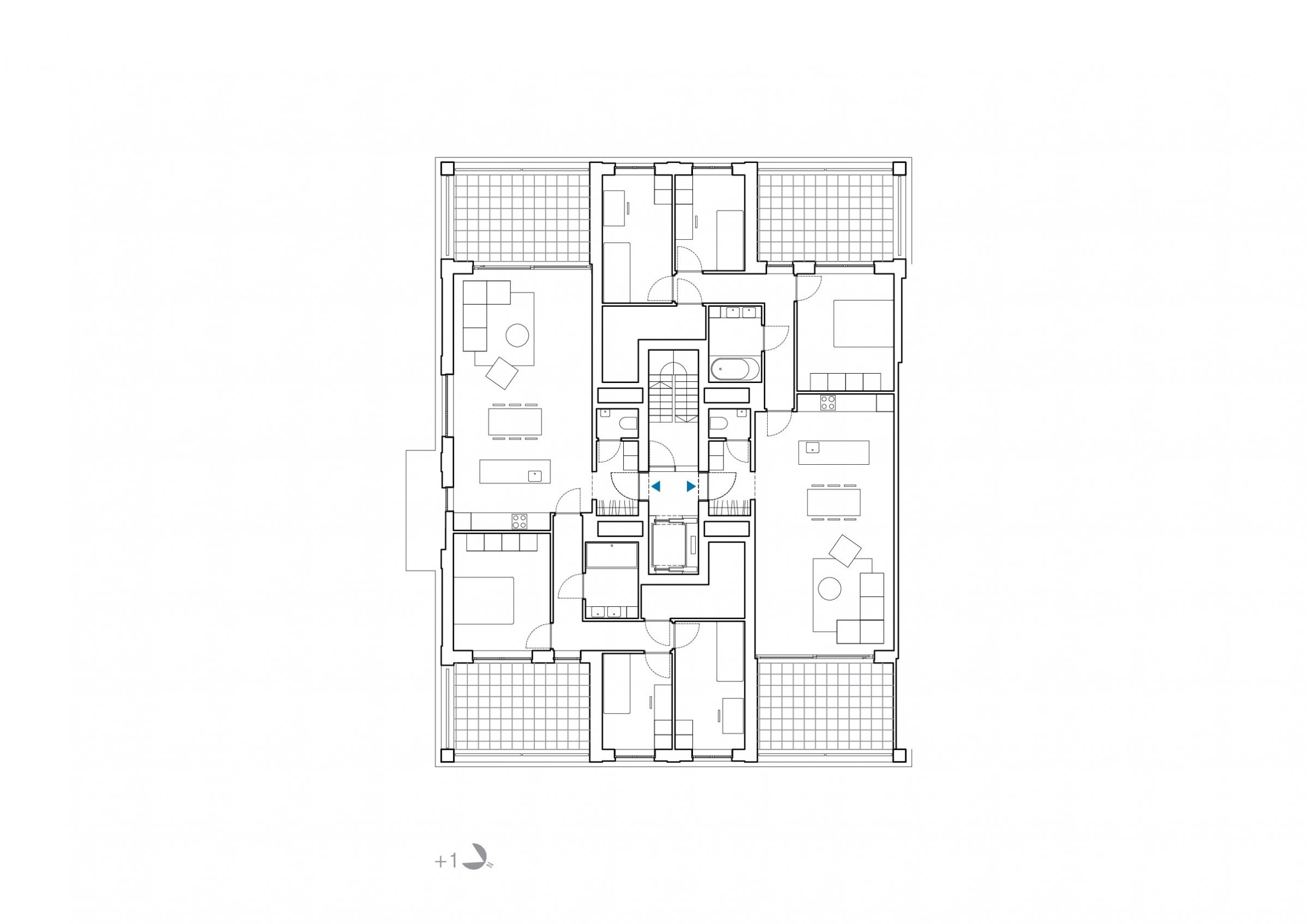
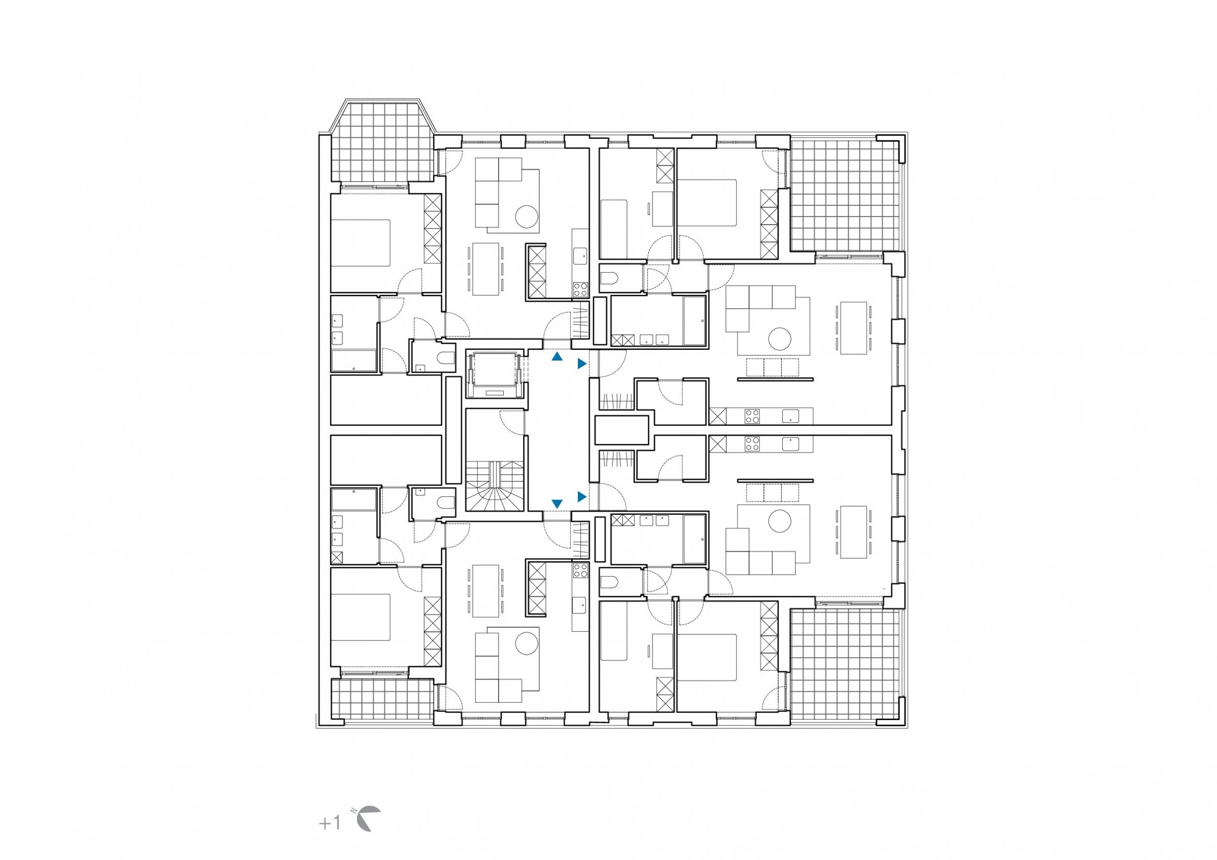
DTP16.600 P-230117 plan +0, +1
DTP16.600 S-230107 Maquette zwart wit B1

B1- Hof-ten-berglaan

DTP16.600 S-230821 B1
DTP16.600 S-230821 gevel B1
DTP16.600 P-230821 B1

B2 - Hof-ten-Berglaan

DTP16.600 S-230821 B2
DTP16.500 M-181112-B2 materialen (versie 5)
DTP16.600 P-2230117 plan +0 A2

B3 - hoek hof-ten-berglaan - pleinzijde

DTP16.600 S-230821 B3
DTP16.500 M-180913-B3 materialen (met C1)
DTP16.600 P-230117 B3 plan

D - zijde cultureelcentrum

DTP16.600 S-230821 D
DTP16.200 P-180905-cluster D-Model gevel west
DTP16.600 P-230117 D +0

E - hoek Begijnhofstraat - cultureelcentrum

DTP16.600 S-230821 E
DTP16.500 M-181112-E-begijnhofstraat-01
DTP16.600 P-230118-E-Model
A1 materialenpalet
A2 materialenpalet
B3 materialenpalet
D1 materialenpalet
B1 variant
B2 materialenpalet