IM_25_KLM15_web-42

De Klimpaal

Aan de rand van het 19de eeuwse bouwblok willen we de school verdichten.

Daar kan het. Daar Hoort het.

Daar raakt de flinkere schaal van de schoolgebouwen de korrel van woningen en kleine appartementsgebouwtjes. Het administratieve gebouwtje en de drie gestapelde klassen vormen de schakel tussen beide systemen. De nieuwe volumes spelen er leentjebuur bij het aangrenzende. Het nieuwe front aan de Paalstraat neemt het ritme en de geleding van de woningen over.

De Klimpaal presenteert er zich als drie woningen. Maar net iets flinker. Er is een onmiskenbare samenhang tussen de 3 huizen. Ze vormen een ensemble.
Het geheel is niet te beroerd om zich te presenteren als een publiek huis. Een huis met een tuin. Dat belooft een boom die over de tuinmuur floept.

De nieuwe gebouwen zijn tevens familiair aan de bestaande schoolgebouwen. Er is een duidelijke en generieke samenhang. De ruimte tussen de gebouwen (en de luifel) profiteert daarvan. Ze blijft beheerst. Rustig, intiem en gezellig.
Op maat van kinderen.

Uitbreiding en renovatie van basisschool De Klimpaal, GO!
Sint-Jans-Molenbeek
2015 - 2025

Technieken: BOTEC                    
Stabiliteit: DS Engineering       
Akoestiek: Tractebel

KLM15.500 B-bing vogelperspectief
KLM13.500 P-zicht01

School in de stad

De gemeente Sint-Jans-Molenbeek is met bijna 95.000 inwoners de vierde grootste gemeente van het Brussels Hoofdstedelijk
Gewest. Bij het kanaal Brussel- Charleroi sluit de gemeente aan bij de kern van onze Belgische en Europese hoofdstad. De
condities in Sint-Jans-Molenbeek zijn dan ook grootstedelijk.

Op een boogscheut van de bedrijvige Steenweg op Gent en het statige Gemeenteplein, bevindt zich de Freinetschool De
Klimpaal, ietwat verborgen achter een flinke tuinmuur. Achter deze muur een speelplaats met een mooie boom. De school plooit
zich rond deze heldere leegte.

IM_25_KLM15_web-2
IM_25_KLM15_web-15
IM_25_KLM15_web-19
IM_25_KLM15_web-50

Quadrangle

Bouwen is vaak omgekeerde architectuur. Het is denken over wat er niet is, over wat open blijft. De leegte, het buiten, de open
ruimte, de openbare ruimte is het eigenlijke binnen.
Wat open blijft, bepaalt de volte. Vol-ledig of complementair. Compleet. Complex.
Gaten in de kaas verruimen en onderhandelen met de school, het bouwblok, de stad...


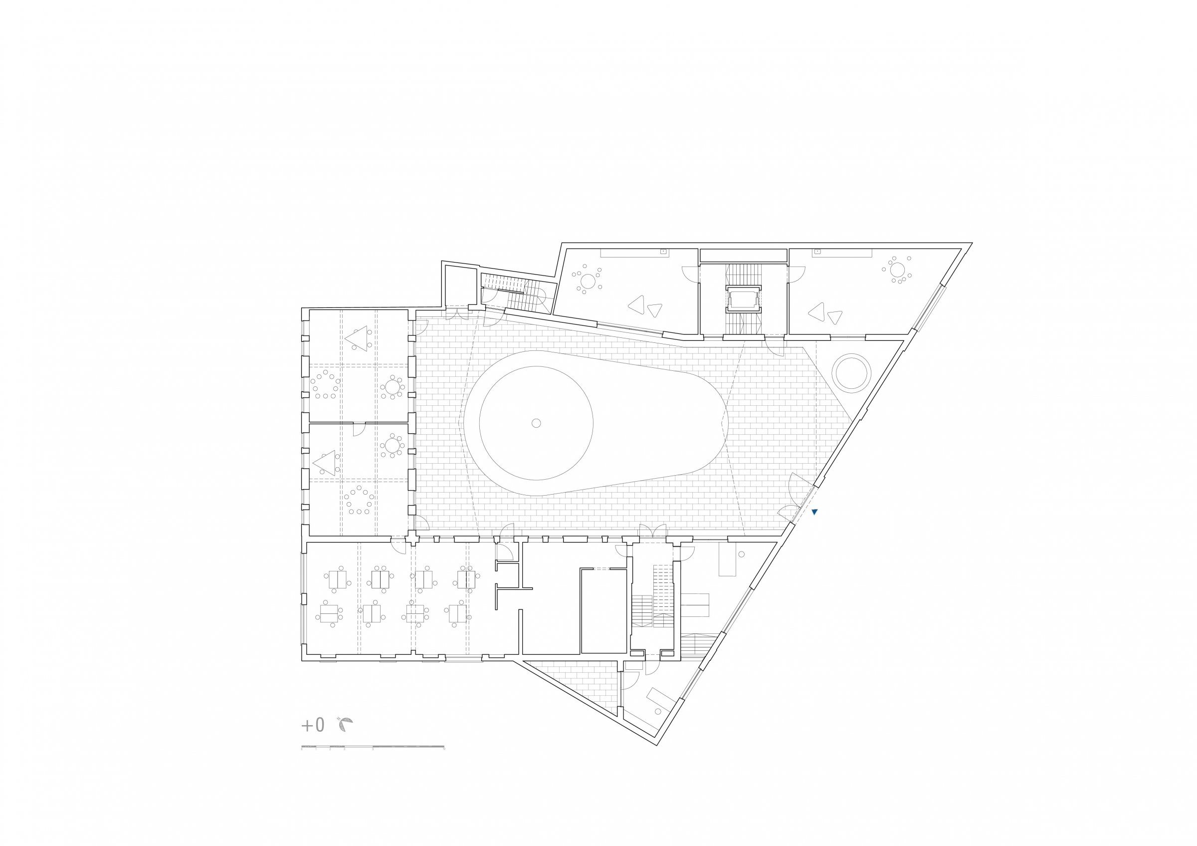
We beschouwen de speelplaats als de belangrijkste kamer van De Klimpaal. De huidige leegte, het quadrangle, blijft behoorlijk
overeind. De plek is rustig, intiem en biedt gepaste beschutting.

KLM15.600 S-begane grond totaalplan
IM_25_KLM15_web-91
IM_25_KLM15_web-12
IM_25_KLM15_web-53
KLM15.500 P-160527 exploded
KLM15.500 P-160808 exploded legende nota BA

Open Huis

De genereuze leegte boven de tuinmuur is uniek in de Paalstraat. Het bouwblok plooit zich letterlijk terug. Het publieke karakter van de school toont zich door wat er niet is. Het is evident dat het binnenkomen, de inkom van de school zich hier bevindt. De poort is slechts weinig transparant. De binnenplaats blijft daardoor intiem. De vanzelfsprekende leegte blijft een huiselijke publiekskamer. In de volumes prikken we grote gaten. Contrapositie. Wat leeg is blijft beschut. Het volle wordt geperforeerd. Het schoolse programma wordt in de Paalstraat geïntroduceerd. Het secretariaat, het directielokaal, de lerarenruimte en drie klaslokalen worden zichtbaar. De school toont zich!

Een hoge plint, borstwering, plantenbak of inpandig terras mediëren het programma met de publieke ruimte. Net zoals bij de buren. We spelen leentjebuur.

IM_25_KLM15_web-27
IM_25_KLM15_web-33

fotografie Inyas Montesinos